Bedrijfsruimte met royale bovenwoning op mooie locatie in centrum!
Op een goede locatie in het centrum van Blerick en bij de Maas ligt deze bedrijfsruimte met royale bovenwoning van 156m2!. Ideaal voor de belegger, ontwikkelaar of voor iemand die de combinatie van wonen en werken zoekt. Het geheel heeft maar liefst een inhoud van ruim 800m3. De bedrijfsruimte is huisnummer 1, de bovenwoning 1a.
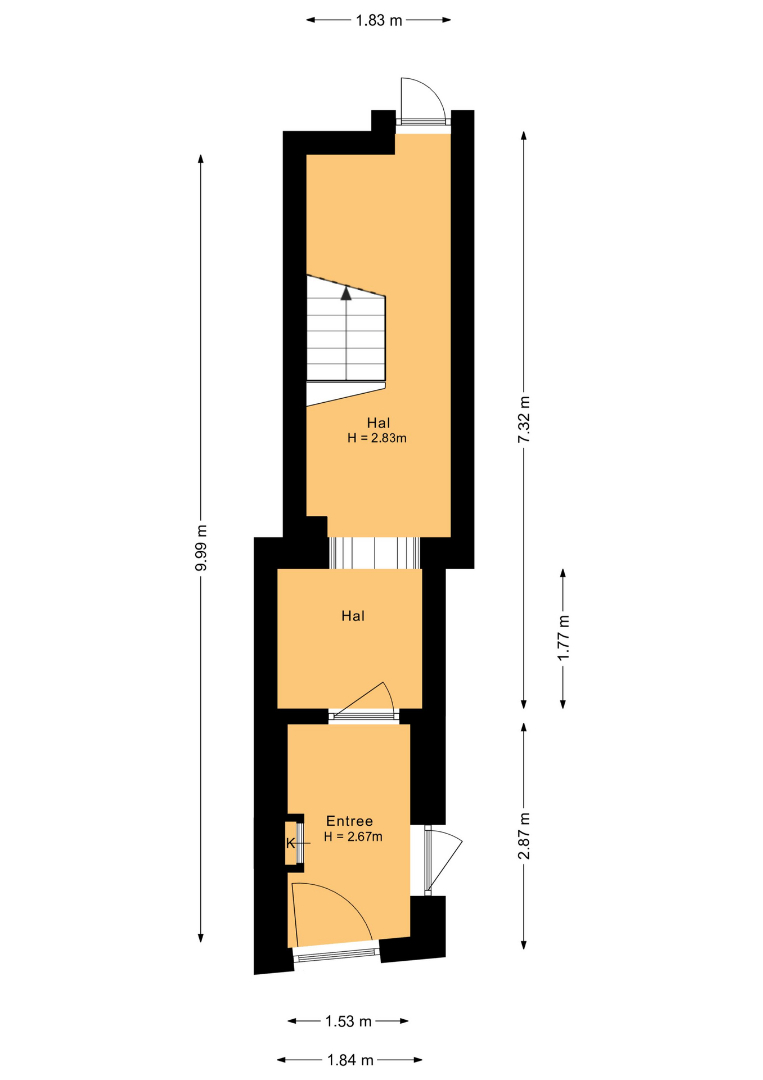
Indeling.
Bedrijfsruimte (kelder/begane grond):
Kelder: praktische kelderruimte (ca. 11m2).
Begane grond: entree, diverse ruimtes van ca. 13m2, 11m2 en 10m2 (voorheen in gebruik als dierenartspraktijk), keukenhoek, 2 technische ruimtes.
Bovenwoning (eerste en tweede verdieping):
Via de algemene entree bereikt u de voordeur van het appartement met trappenhuis en bergruimte voor bijvoorbeeld een scooter of fiets.
Eerste verdieping:
Overloop, hal, 2 ruime slaapkamers (beiden ca. 18,5m2), badkamer (ca. 11m2) met ligbad, douche en toilet. Via één van de slaapkamers is het balkon (ca. 11m2) te bereiken.
Tweede verdieping:
Overloop, woonkeuken (ca. 14m2 met aan 2 zijdes een keukenblok, uiterst royale woonkamer (ca. 52m2!) met houten vloeren, zijdelings maaszicht en mooie balkenconstructie.
Goed om te weten:
- De bedrijfsruimte wordt leeg en onverhuurd opgeleverd;
- De bovenwoning is thans verhuurd maar een lege oplevering is bespreekbaar;
- Perfecte ligging met op steenworpafstand de winkelstraat en de Maas;
- Horecagelegenheden en diverse andere voorzieningen om de hoek;
- Korte afstand naar Venlo en alle belangrijke uitvalswegen;
- Bovenwoning heeft grotendeels houten vloeren;
- Aanwezigheid van 1 c.v. ketel (HUUR) voor het geheel, nog geen scheiding in meters;
- Aanvaarding in overleg;
- Woning energielabel D (2025), bedrijfsruimte energielabel G (2018)
Een object met mogelijkheden en veel potentie voor een interessante prijs.
Plattegronden
De ligging
Neem vrijblijvend contact op
Wil je meer informatie of het pand bezoeken? Neem gerust contact met ons op voor meer details. Zodra we jouw aanvraag hebben ontvangen, nemen we verder contact met je op.













