Huisnummer 14 en 16! Winkelruimte met bovenwoning. Interessante locatie/veel potentie!
De kans voor ondernemers of beleggers in hartje Venlo!
In het centrum van Venlo (bij het Nolensplein) ligt deze winkelruimte met opslag en bovenwoning.
Dit ruime object biedt de ideale mogelijkheid om naar eigen wens te renoveren. Veel potentie!
- Bedrijfsruimte: verhuurbare vloeroppervlakte 141m2 / inhoud 580m3
- Bovenwoning: woonoppervlakte 121m2 / inhoud 480m3
Indeling bedrijfsruimte.
Begane grond:
Winkelruimte (ruim 50m2), hal, berging, keuken, diverse opslagruimtes met plaats voor bijvoorbeeld koelcellen.
Eerste verdieping:
Via een vaste trap naar overloop, kamer (ca. 14,5m2) welke in gebruik is geweest als opslag.
Tweede verdieping:
Via een vaste trap naar overloop met 2 kamers (ca. 13m2 en 4,5m2) welke eveneens als opslagruimte hebben gediend.
Indeling bovenwoning (met eigen entree!).
Eerste verdieping:
Overloop, woonkamer (ca. 33,5m2), keuken (ca. 11m2), slaapkamer (ca. 6,5m2).
Tweede verdieping:
Overloop, maar liefst 4 slaapkamers( ca. 12m2, 12m2, 12m2 en 7m2), kastruimte.
Derde verdieping:
Overloop met zolder (ca. 8,5m2).
Diverse:
- De nodige renovatie biedt de mogelijkheid dit naar eigen wens en budget te doen.
- Het betreft een weg met veel passanten (veelal winkelend publiek) waardoor je van een goede zichtbaarheid en aanloop profiteert.
- Op steenworpafstand ligt een Q-park parkeergarage.
De winkel heeft energielabel D en G (verdiepingen)
De bovenwoning heeft energielabel F
Grijp deze kans en investeer in een commerciële ruimte met toekomst! Puteanusstraat 14 en 16 is klaar voor jouw ondernemersdroom of als waardevolle aanvulling op je vastgoedportefeuille.
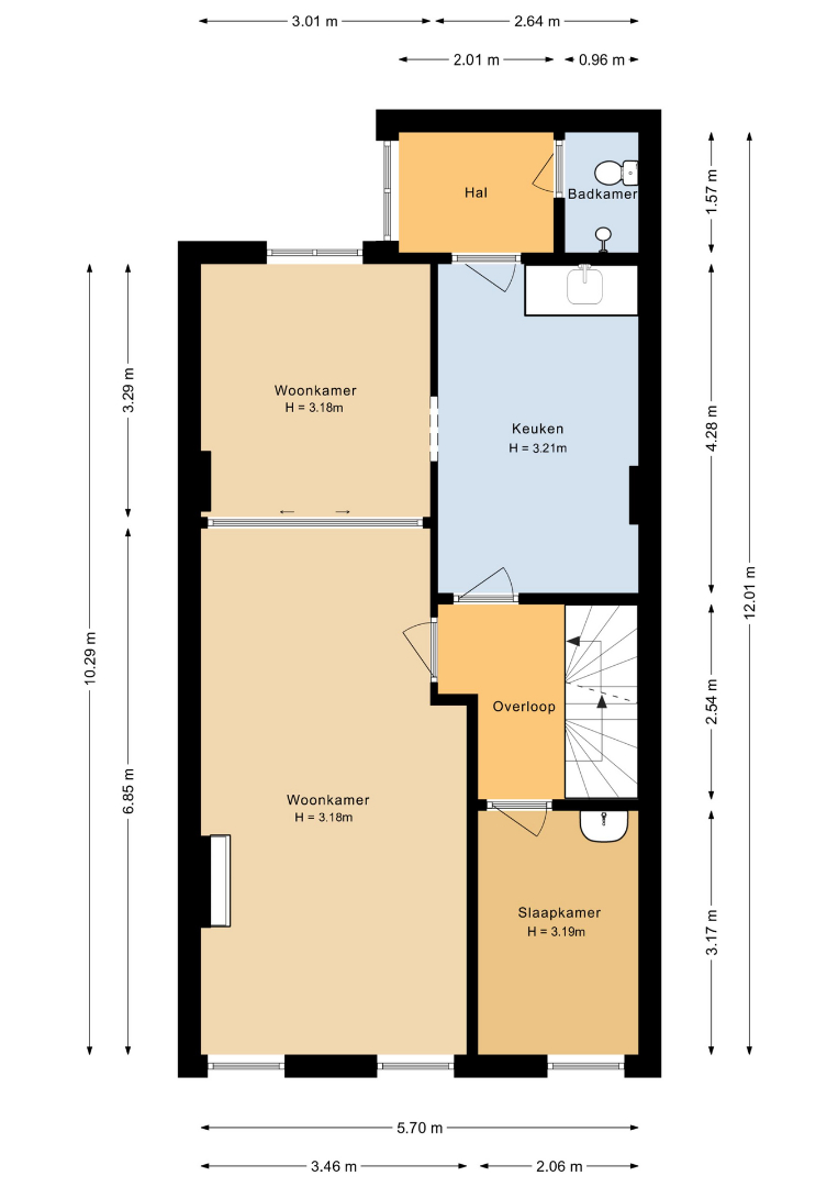
Plattegronden
De ligging
Neem vrijblijvend contact op
Wil je meer informatie of het pand bezoeken? Neem gerust contact met ons op voor meer details. Zodra we jouw aanvraag hebben ontvangen, nemen we verder contact met je op.













