Op zoek naar een ruime hoekwoning met garage, tuin én vier (slaap)kamers op een centrale locatie?
Deze woning aan de Burgemeester Conraetzstraat 25A in Venlo biedt alles wat je nodig hebt: comfort, licht en een praktische indeling, op loopafstand van het centrum en het Julianapark.
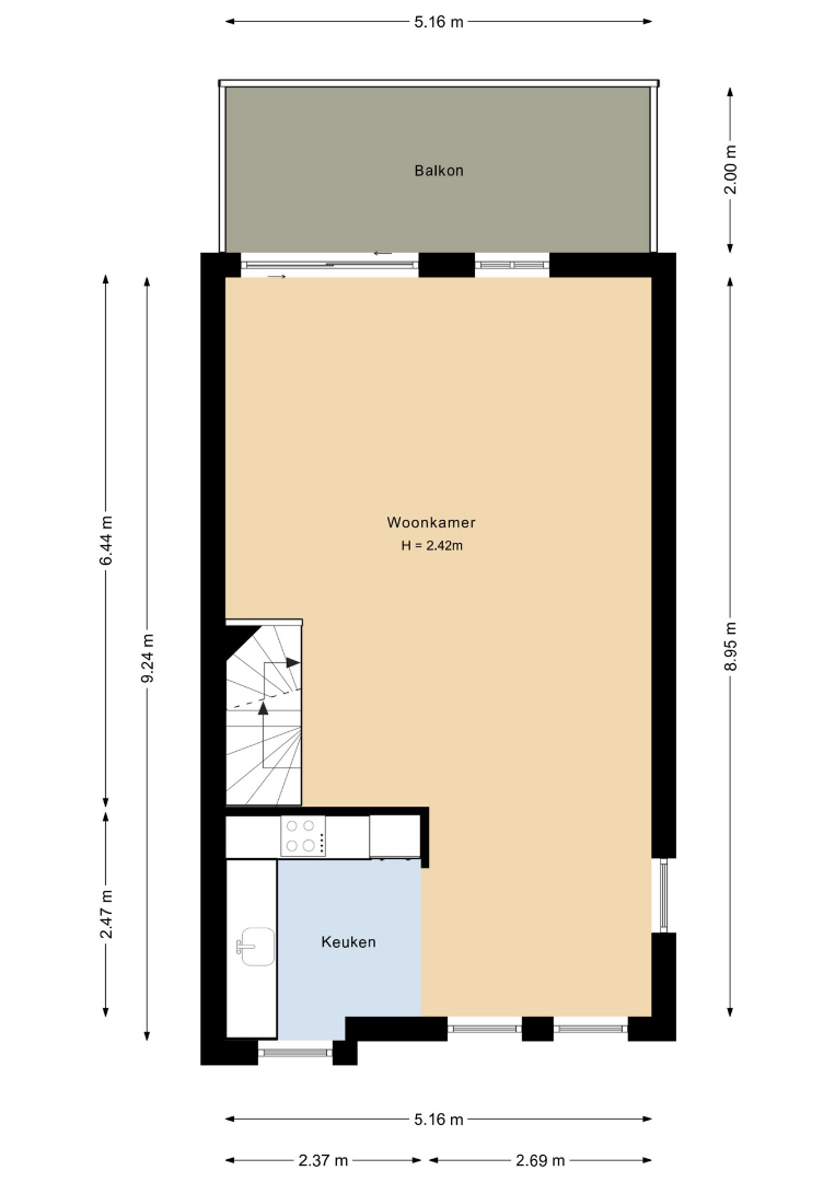
Indeling
Begane grond:
Entree met gang en toiletruimte met hangend toilet en fonteintje. Vanuit de gang is er toegang tot de royale garage met elektrische rolpoort (ca. 18 m2). Tevens ligt er op de begane grond een slaap/hobby/werkkamer van (ca. 13.5 m2) welke ook directe toegang biedt naar de tuin.
Eerste verdieping:
De trap leidt naar de lichte woonkamer met open woonkeuken (ca. 47 m2). De keuken is voorzien van inbouwapparatuur zoals een 4-pits elektrische kookplaat, afzuigkap, oven, vaatwasser en koelkast. Vanuit de woonkamer is er toegang tot een balkon (ca. 10 m2). Een vaste trap vanaf het balkon leidt naar de tuin, die beschikt over een vrije achterom.
Tweede verdieping:
Hier bevinden zich drie slaapkamers van (ca. 15.5, 8.5 en 7 m2) , een praktische berging met witgoedaansluiting en de badkamer. De badkamer van (ca. 7 m2) is uit gerust met een douche, ligbad, toilet, wastafel en een lichtkoepel dat zorgt voor natuurlijk licht.
Wetenswaardigehden op een rij:
-Energielabel C
-Vier (slaap)kamers
-Ruime garage met elektrische poort
-Tuin met vrije achterom
-Cv-installatie uit 2010
-Gelegen nabij het centrum en het Julianapark
-De woning is grotendeels voorzien van kunststof kozijnen en HR++ glas
-Het dak is in 2025 grotendeels vernieuwd
Ligging:
Uw nieuwe thuis bevindt zich op goede en geliefde locatie in Venlo-Oost met het centrum op korte loopafstand en alle nodige voorzieningen binnen handbereik: supermarkt, winkelvoorzieningen, basisschool, station en bushaltes liggen op korte fietsafstand. De Duitse grens, natuurgebied ‘de Grote Heide’ en diverse uitvalswegen (A73 & A67) liggen op korte afstand rijden.
Plattegronden
De ligging van de woning
Neem vrijblijvend contact op
Wil je meer informatie of het pand bezoeken? Neem gerust contact met ons op voor meer details. Zodra we jouw aanvraag hebben ontvangen, nemen we verder contact met je op.













