Een karaktervolle woning in Venlo-Oost staat nu te koop… en misschien wel voor jou!
Wonen op één van de mooiste plekken van Venlo, in een charmante woning met alle gemakken van nu? Dat kan! Deze karakteristieke 2-onder-1-kapwoning combineert sfeer, rust en ruimte op een toplocatie.
U geniet van vrij uitzicht over het groen, terwijl u binnen verrast wordt door de royale woonkamer met open keuken en openslaande deuren naar het terras. Een plek waar het licht heel fijn en in overmaten binnenvalt.
De woning beschikt over:
- 3 slaapkamers (met mogelijkheid tot 4)
- een complete badkamer met uitzicht op de bomen
- een inpandige garage in de kelder
- een vrije achterom met enkel bestemmingsverkeer: rust en privacy
- alle voorzieningen binnen handbereik
De authentieke details geven deze woning warmte en karakter, terwijl de indeling en voorzieningen volledig zijn afgestemd op hedendaags wooncomfort.
Kortom: toplocatie, veel sfeer, veel ruimte en rust! Dit wil je niet missen!
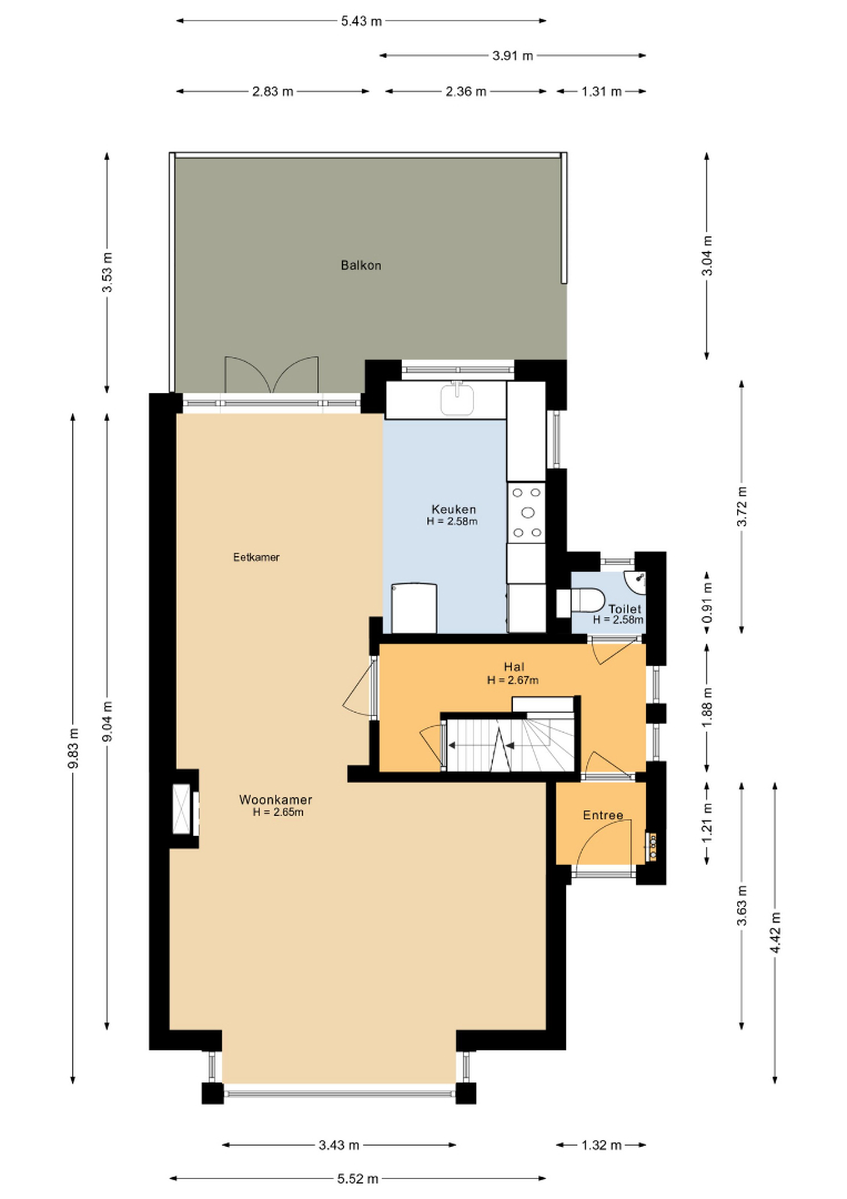
Indeling
Kelder:
- De woning beschikt over een ruime inpandige garage (ca. 49,5m2) die direct vanuit de straatzijde achterom bereikbaar is. Een extra pluspunt zijn de openslaande deuren naar de eigen oprit.
- In deze kelder vindt u tevens een separate provisieruimte, de witgoedopstelling en de boiler voor de keuken.
Begane grond:
- Stap binnen via de charmante vestibule en kom binnen in de hal die toegang biedt tot de verdieping, de kelder en het toilet met hangcloset en fontein.
- De royale woonkamer (ca. 22,5m2) is een echte eyecatcher: een karakteristieke erker, een warme houten vloer, een sfeervolle gashaard en openslaande deuren naar het terras laten het zonlicht binnenstromen en bieden uitzicht op het groen.
- De open keuken (ca. 9m2) is uitgerust met een 5-pits gasfornuis met grote oven, afzuigkap, vaatwasser en een luxe Belgisch hardsteen werkblad. In de aansluitende eetkamer (ca. 16,5m2) kunt u aan een grote eettafel heerlijk koken én samen genieten van gezellige momenten met familie en vrienden.
Eerste verdieping:
- Op de eerste verdieping kom je u op de overloop met handige inbouwkast voor extra bergruimte.
- De woning beschikt over 2 ruime slaapkamers (ca. 15,5m2 en ca. 9m2), met de mogelijkheid om eenvoudig weer 3 slaapkamers te creëren. Deze optie is ideaal voor een groeiend gezin of het maken van een thuiswerkplek.
- De complete badkamer (ca. 7,5m2) is een echte plek om te ontspannen: in de erker vind je een ligbad met vrij uitzicht op het groen. Daarnaast beschikt de badkamer over een wastafel, tweede closet en separate douche. Hier kun je in alle rust de dag beginnen of afsluiten.
Tweede verdieping:
- De overloop is ruim opgezet en functioneel ingedeeld. Aan de ene kant bevindt zich de cv-opstelling, terwijl de andere kant voldoende ruimte biedt voor een extra slaapbank of bed.
- Bovendien vindt u hier de derde slaapkamer (ca. 12m2), een lichte en gezellige ruimte die uitstekend dienst kan doen als slaap-, logeer-, werk- of kinderkamer.
Tuin:
- De voortuin is enkele jaren geleden volledig opnieuw aangelegd en vormt een mooie entree naar de woning. Het pad naast het huis naar de achtertuin is met veel zorg en liefde beplant, waardoor het een sfeervolle route naar de achtertuin vormt.
- De achtertuin is speels van opzet en biedt volop mogelijkheden om naar eigen wens aangelegd te worden. Vanuit de keuken is er een terras (ca. 19m2) bereikbaar dat uitkijkt over het lager gelegen deel van de tuin.
- Het achterpad achter de woning wordt slechts door bestemmingsverkeer gebruikt en dient tevens als vrije achterom naar de garage/kelder wat extra gemak biedt.
Extra wetenswaardigheden:
- De woning ligt op een topplek in Venlo-Oost met een perfecte combinatie van groen, rust, nabijheid van dagelijkse voorzieningen, het centrum en een gewilde woonomgeving.
- Houten kozijnen met deels dubbele beglazing en deels enkel glas (eerste verdieping).
- Rolluiken: Grotendeels voorzien van handmatig bedienbare rolluiken.
- Diverse kozijnen zijn recent (september 2025) geschilderd.
- De huidige CV-installatie is van oud bouwjaar en dient vervangen te worden, wat mogelijkheden biedt voor een moderne upgrade.
Plattegronden
De ligging van de woning
Neem vrijblijvend contact op
Wil je meer informatie of het pand bezoeken? Neem gerust contact met ons op voor meer details. Zodra we jouw aanvraag hebben ontvangen, nemen we verder contact met je op.













