Heymansstraat 140A
Deze tussenwoning bestaat uit 2 verdiepingen en combineert modern wonen met een slimme indeling en een zonnig terras. Perfect voor gezinnen!
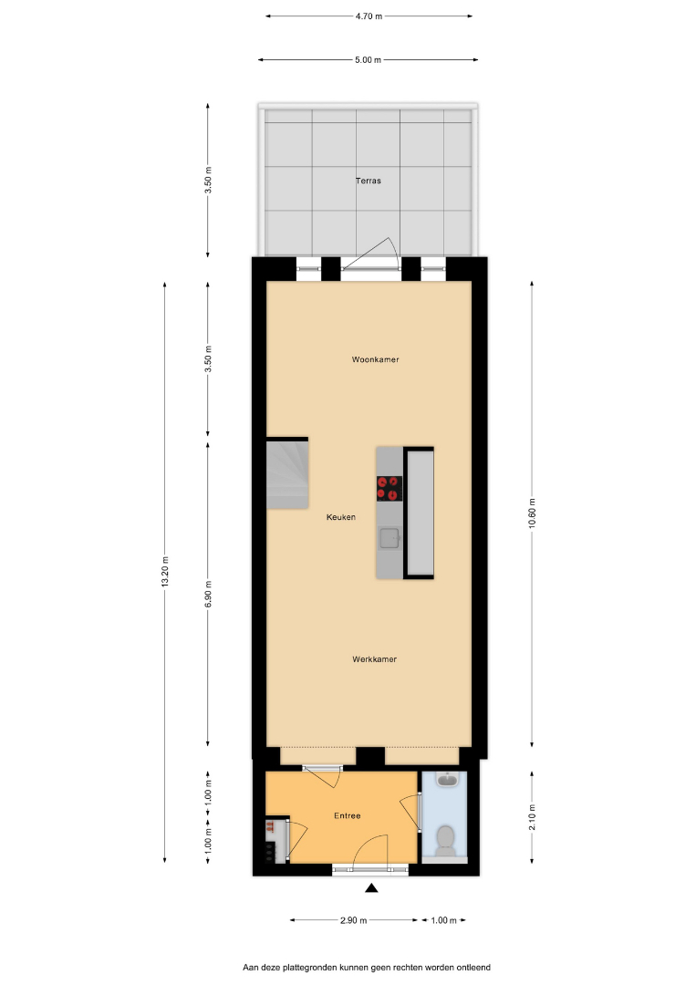
Begane grond
Via de royale entree met toilet loop je de eetkamer van circa 17m² binnen, die direct verbonden is met de moderne open keuken. De lichte woonkamer van circa 36m² grenst aan het beschutte terras, dat je bereikt via de openslaande deuren. Vanuit de woonkamer leidt een trap naar de 1e verdieping.
1e verdieping
Hier bevindt zich een ruime slaapkamer van circa 17m² en een 2e slaapkamer van circa 14m², geschikt als kin- derslaapkamer, werk- of hobbyruimte. Daarnaast is de badkamer voorzien van een inloopdouche, wastafel en een tweede toilet. De overloop verbindt alle ruimtes en geeft toegang tot een praktische berging.
Afwerking
Deze woning is zowel beneden als boven voorzien van comfortabele vloerverwarming en biedt volop vrijheid: je bepaalt zelf de keuken, vloer en afwerking. Het standaard sanitair is inbegrepen, maar wil je meer luxe? Dat kan in overleg worden geregeld.
Specificaties
• woonoppervlakte circa 105m²
• royaal privé-terras circa 19,5m²
• 2 verdiepingen
• 2 ruime slaapkamers
• volledig gasloos en energiezuinige installaties
• 2 gezamenlijke (fietsen)bergingen
• inclusief 1 parkeerplaats
• een unieke woonbeleving!
Kijk voor meer informatie op: https://www.mariakerkboekend.nl/
Plattegronden
De ligging van de woning
Neem vrijblijvend contact op
Wil je meer informatie of het pand bezoeken? Neem gerust contact met ons op voor meer details. Zodra we jouw aanvraag hebben ontvangen, nemen we verder contact met je op.













