Royale instapklare woning met diepe tuin en ruime garage.. Energielabel A!
Welkom aan de Kaldenkerkerweg 32 in Tegelen!
Deze ruime, moderne en instapklare gezinswoning heeft alles wat je zoekt: een royale woonkamer met open keuken, vier grote slaapkamers, een luxe badkamer én volop praktische ruimte dankzij de kelder en garage. Hier geniet je van comfort, ruimte en een heerlijke diepe tuin.
Indeling.
Begane grond:
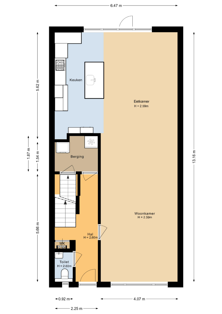
Via de hal met modern hangtoilet en fonteintje bereik je een handige bergruimte met witgoedaansluitingen en de trap naar de royale kelder (ca. 55 m²).
De lichte en ruime woonkamer met open keuken (ca. 66,5 m²) vormt het hart van de woning. De keuken is voorzien van een 5-pits gasfornuis, oven, koelkast met vriesvakje, een royaal kookeiland met spoelbak én veel kastruimte. Vanuit de woonkamer loop je zo de diepe achtertuin in met gezellige overkapping, vrije achterom en een geïsoleerde garage (ca. 35 m²) met dubbele deuren.
De gehele benedenverdieping is uitgerust met elektrische rolluiken en de geïsoleerde garage beschikt over een elektrische sectionaalpoort die tevens met afstandsbediening te openen is.
Eerste verdieping:
De overloop met airconditioning geeft toegang tot drie ruime slaapkamers (ca. 14 m², 15,5 m² en 11 m²), allen uitgerust met elektrische rolluiken. De luxe badkamer (ca. 10,5 m²) is modern afgewerkt en voorzien van een ligbad, dubbele wastafel, inloop-regendouche, hangend toilet en designradiator.
Tweede verdieping:
Hier vind je een royale vierde slaapkamer van ca. 22 m², ideaal als master bedroom, werkkamer of hobbyruimte.
Pluspunten van deze woning:
• Royale kelder van ca. 55 m²
• Woonkamer + keuken samen maar liefst ca. 66,5 m²
• Diepe tuin met overkapping (dak nov 2025) en vrije achterom
• Geïsoleerde garage (ca. 35 m²) met dubbele deuren en elektrische sectionaalpoort met afstandsbediening
• Vier ruime slaapkamers
• Luxe badkamer met hoogwaardige afwerking
• Voorzien van airconditioning en overal elektrische rolluiken
Plattegronden
De ligging van de woning
Neem vrijblijvend contact op
Wil je meer informatie of het pand bezoeken? Neem gerust contact met ons op voor meer details. Zodra we jouw aanvraag hebben ontvangen, nemen we verder contact met je op.













