Vrijstaande woning met een woonunit!
Bent u op zoek naar ruimte, comfort én multifunctionaliteit? Dan is deze instapklare vrijstaande woning precies wat u zoekt! Gelegen in een rustige woonwijk, biedt deze woning mogelijkheden voor wonen, werken en hobby’s: allemaal op eigen terrein.
De perceeloppervlakte betreft een circa-maat en zal door het Kadaster definitief worden ingemeten.
Pluspunten van de woning:
• Instapklare vrijstaande woning met 3 ruime slaapkamers
• Een garage – meer dan genoeg ruimte voor een auto, motor of extra opslag
• Woonunit – perfect voor gasten, mantelzorg of verhuur
• Kantoor-/hobbyruimte – werk comfortabel vanuit huis
• Serre en overkapping – genieten van het buitenleven in elk seizoen
• Energiebewust wonen dankzij 15 zonnepanelen (eigendom)
• Eigen oprit
• Rustige ligging in een kindvriendelijke woonwijk
• Uitstekende bereikbaarheid, nabij uitvalswegen
Indeling.
Begane grond:
- De woonkamer (ca. 35m2) is voorzien van vloerverwarming en airconditioning, wat zorgt voor een aangenaam klimaat in elk seizoen.
- De gezellige zithoek met elektrische kachel en aan de achterzijde de schuifpui zorgen voor extra sfeer en lichtinval.
- De open keuken (2019 en ca. 12m2) is van alle gemakken voorzien. Zo vind je hier een stijlvol kunststof werkblad, een 4-pits inductiekookplaat, combi-oven, vaatwasser, koelkast en een praktische Quooker voor direct kokend water.
- Aansluitend bevindt zich een handige bijkeuken (ca. 6m2) met deur naar de tuin én doorgang naar een multifunctionele kantoor- of hobbyruimte (ca. 12,5m2), compleet met eigen sanitaire voorzieningen. Ideaal voor thuiswerken, een praktijk aan huis of als gastenverblijf.
Verdieping:
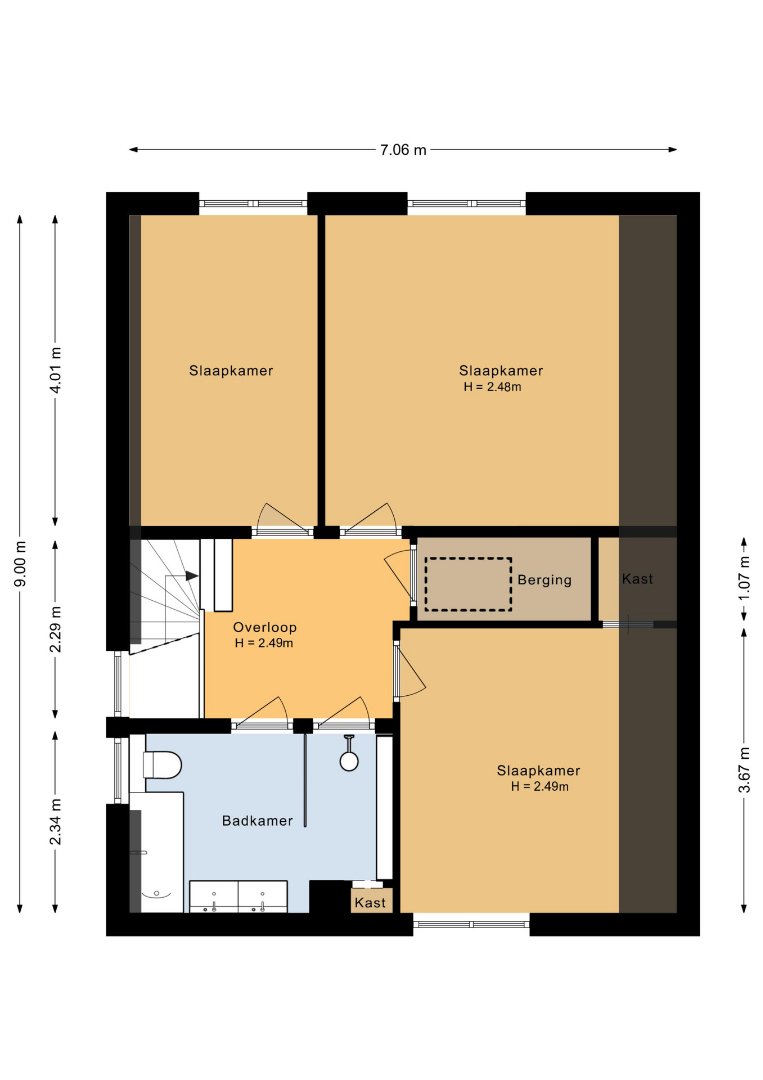
- Op de eerste verdieping biedt de ruime overloop (voorzien van airconditioning) toegang tot drie comfortabele slaapkamers (ca. 18m2, ca. 13m2 en ca. 10m2). Eén van de kamers beschikt over een deur naar het zonnige dakterras.
- Daarnaast is er een praktische berging, momenteel in gebruik als royale inloopkast, met een wateraansluiting voor bijvoorbeeld een wasmachine of wastafel.
- De badkamer (ca. 8m2) is van alle luxe voorzien: een dubbele wastafel met meubel, een verwarmde spiegel, zwevend toilet, een ligbad en een royale inloopdouche.
- Via een vlizotrap is de grote bergvliering met cv-opstelling (AWB – 2001 - eigendom) bereikbaar: ideaal als extra opslagruimte!
Tuin:
Deze volledig omheinde en onderhoudsvriendelijke tuin biedt vele zitplaatsen en opbergruimte:
- Er is een ruime serre (2019 en ca. 17m2), voorzien van twee lichtkoepels;
- Via de serre is de garage (ca. 27,5m2) toegankelijk die uitgerust is met eveneens een lichtkoepel, een praktische inbouwkast en een comfortabele elektrische sectionaalpoort;
- Aanwezigheid van een separate berging (ca. 6m2) met overkapping;
- Een directe doorgang naar de woonunit.
Woonunit:
- Sfeervolle woonunit (ca. 38m2) met lichte woonkamer, open keuken en airconditioning
- Comfortabele slaapkamer met airco
- Verzorgde badkamer met douche, toilet en aansluitingen voor wasmachine en droger
- Meerdere bergingen
- Royale serre met prachtig uitzicht op de fraai aangelegde tuin met vijverpartij, buitendouche en een tuinhuis met sauna.
Maak snel een afspraak voor een bezichtiging en ervaar zelf de mogelijkheden van deze woning.
Plattegronden
De ligging van de woning
Neem vrijblijvend contact op
Wil je meer informatie of het pand bezoeken? Neem gerust contact met ons op voor meer details. Zodra we jouw aanvraag hebben ontvangen, nemen we verder contact met je op.













