Ruime en instapklare hoekwoning met garage, 4 slaapkamer en royale tuin.
Ben je op zoek naar een woning met ruimte, comfort, moderne voorzieningen én een verzorgde afwerking? Ontdek dan deze goed onderhouden hoekwoning aan de Neeringerweg 19 in het groene en rustige Steyl. Met onder andere vier slaapkamers, een moderne badkamer (2022), een mooie keuken, inpandige garage, fraai aangelegde tuin met vrije achterom én voldoende parkeergelegenheid bij de woning, biedt deze woning alles wat je zoekt!
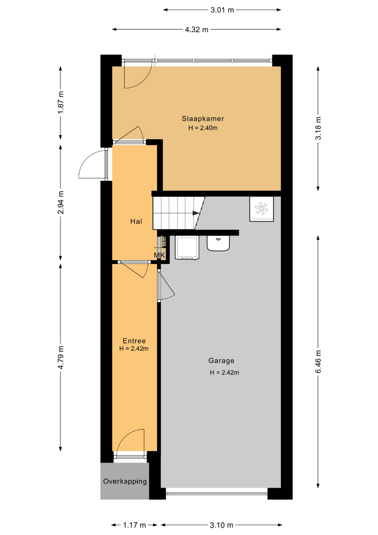
Indeling.
Begane grond:
Via de overdekte entree kom je in de ruime hal met toegang tot een multifunctionele kamer aan de achterzijde – perfect als thuiskantoor, hobbyruimte of slaap/logeerkamer. Daarnaast bevindt zich hier de inpandige garage met elektrische sectionaalpoort, witgoedaansluitingen en extra bergruimte.
Eerste verdieping:
De ruime en lichte woonkamer beschikt over een pelletkachel voor extra sfeer en warmte. Verder heb je hier de gesloten keuken, uitgerust met een 4-pits gasfornuis, oven, afzuigkap en vaatwasser. Op de overloop bevindt zich een toiletruimte met fontein. De hoekligging zorgt voor veel natuurlijk licht. Deze gehele verdieping is afgewerkt met een nette laminaatvloer.
Tweede verdieping:
Hier bevinden zich drie volwaardige slaapkamers (ca. 14,5m2, 10,5m2 en 10,5m2), waarvan twee met airconditioning. De badkamer is in 2022 vernieuwd en voorzien van een inloopdouche, dubbele wastafel en tweede toilet. Op de overloop bevindt zich een handige vaste kast. Ook deze verdieping is voorzien van een laminaatvloer.
Buitenruimte:
De achtertuin is verzorgd aangelegd met meerdere terrassen, borders, een gazon en een vrije achterom – ideaal voor fietsen, containers of gewoon als extra toegang. Dankzij de hoekligging geniet je van extra buitenruimte..
Pluspunten van deze woning:
• Vier slaapkamers, waarvan één op de begane grond
• Moderne badkamer (2022) met inloopdouche, dubbele wastafel en hangend toilet
• Pelletkachel in de woonkamer
• Nette keuken met inbouwapparatuur (gasfornuis, oven, afzuigkap, vaatwasser)
• Twee airco-units op de bovenverdieping (koelen én verwarmen)
• Cv-ketel (eigendom, 2021)
• Dubbele beglazing, kunststof en houten kozijnen
• Deels voorzien van elektrische rolluiken
• Inpandige garage (ca. 20m2) met elektrische sectionaalpoort
• Gelegen in een kindvriendelijke, groene woonomgeving, nabij scholen, winkels, openbaar vervoer en uitvalswegen
Neeringerweg 19 in Steyl is een instapklare, complete gezinswoning met sfeer en mogelijkheden!
Plattegronden
De ligging van de woning
Neem vrijblijvend contact op
Wil je meer informatie of het pand bezoeken? Neem gerust contact met ons op voor meer details. Zodra we jouw aanvraag hebben ontvangen, nemen we verder contact met je op.













