Bent u op zoek naar een uniek project met volop potentie? Deze karaktervolle woning ligt op een royaal perceel van maar liefst 930m² en biedt alle ruimte om uw woonwensen werkelijkheid te maken. De woning bevindt zich in een rustige, groene omgeving, op loopafstand van de gezellige dorpskern met winkels, horeca en de Maas.
Pluspunten op een rij:
- Vrijstaande woning met authentieke details
- Groot perceel van 930 m²
- Gelegen in een rustige straat
- Dorpskern op korte loopafstand
- Volop mogelijkheden voor renovatie of uitbreiding (onder voorbehoud van vergunning)
Laat uw creativiteit de vrije loop en maak van deze woning uw droomhuis op een prachtige locatie!
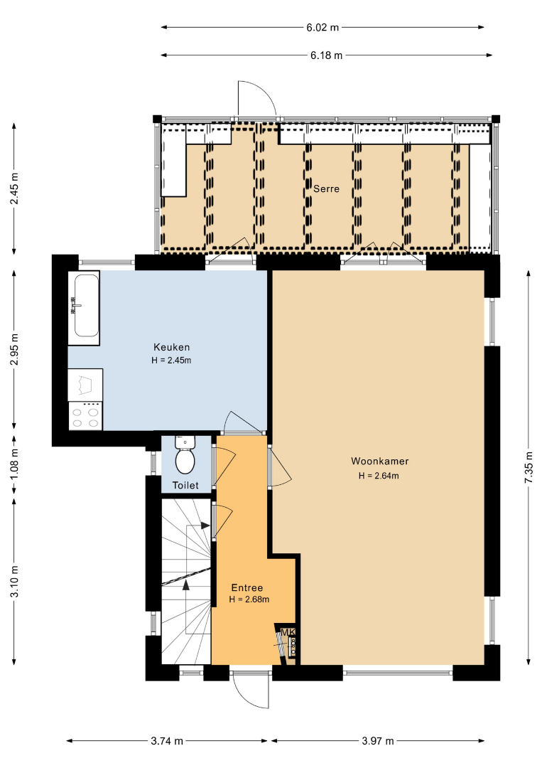
Indeling.
Kelder:
Provisiekelder (ca. 7m2) met stahoogte: praktisch en veelzijdig!
Begane grond:
Entree, hal, toiletruimte, woonkamer (ca. 28m2) met parketvloer en openslaande deuren naar serre, dichte keuken (ca. 11m2), serre (ca. 15m2).
Eerste verdieping:
Overloop, 2 slaapkamers (ca. 16m2 en 10,5m2) met wastafel en muurkast, inloopkamer met mogelijkheid voor het creëren van een kleine slaapkamer, badkamer met douche en wastafel. Via een vaste trap naar…
Tweede verdieping:
Overloop met bergruimte, 2 zolderkamers waarvan 1 met c.v. opstelling.
Diverse:
- De tuin bestaat hoofdzakelijk uit gazon, verder diverse mooie bomen, borders, schuurtje en goede privacy
- Aanwezigheid van paneeldeuren
Omgeving:
Arcen: het oude pittoreske dorp met alle voorzieningen (bakker, supermarkt en talloze terrassen en restaurants) op loopafstand. Venlo en alle belangrijke uitvalswegen zijn bereikbaar binnen ca. 15 minuten. Arcen is omringd door prachtige natuurgebieden. Voor meer informatie en wetenswaardigheden over Arcen, verwijzen wij u graag naar: https://www.beleefarcen.nl/arcen/
Plattegronden
De ligging van de woning
Neem vrijblijvend contact op
Wil je meer informatie of het pand bezoeken? Neem gerust contact met ons op voor meer details. Zodra we jouw aanvraag hebben ontvangen, nemen we verder contact met je op.













