top of page

Veldstraat 52

5988 AK Helden

Vraagprijs: € 439.000,- k.k.

1966

116 m²

3

Welkom in deze vrijstaande woning aan de Veldstraat 52 in Helden, waar ruimte, functionaliteit en mogelijkheden samenkomen.

Deze woning combineert comfort met volop ruimte, zowel binnen als buiten. Met een eigen oprit, garage en een ruime tuin met vrije achterom is dit een compleet huis op een aantrekkelijke locatie, mét veel potentie en mogelijkheden.

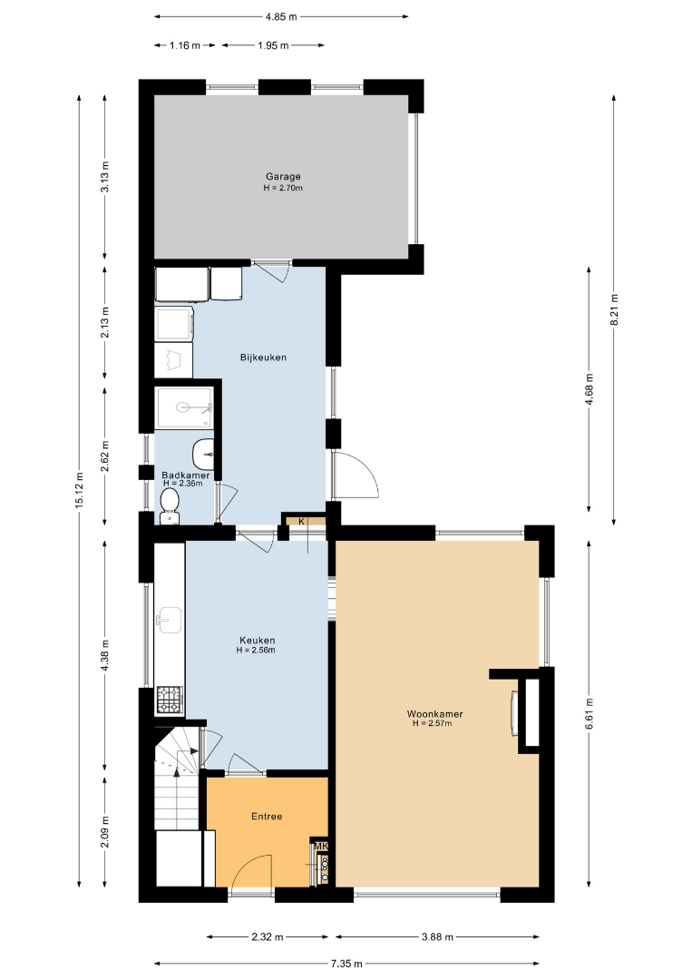
Indeling begane grond
Bij binnenkomst via de entreehal (ca. 7,5 m²) treft u de meterkast en trapopgang naar de eerste verdieping. Vanuit de hal bereikt u de keuken (ca. 13,5 m²), uitgerust met een 4-pits gasfornuis, oven, afzuigkap en wasbak. Hier bevindt zich tevens de toegang tot de kelder (ca. 9 m²), ideaal als voorraadruimte.

De lichte woonkamer (ca. 25 m²) sluit direct aan op de keuken en biedt een prettige leefruimte met volop mogelijkheden.

Aan de achterzijde van de woning bevindt zich de praktische bijkeuken (ca. 12,3 m²) met witgoedaansluitingen. Hier is tevens de eerste badkamer voorzien (ca. 3 m²) van douche, toilet en fonteintje. Vanuit de bijkeuken bereikt u de garage (ca. 15 m²), voorzien van een elektrische rolpoort.

Eerste verdieping
De overloop geeft toegang tot drie slaapkamers van ca. 10 m², 11 m² en 13 m². Twee slaapkamers en de overloop zijn voorzien van handige muurkasten. Alle slaapkamers beschikken over rolluiken. De tweede badkamer is uitgerust met een ligbad, toilet, wastafel en eveneens een handige muurkast.

Zolder
Via de vlizotrap bereikt u een ruime zolderverdieping, die uitstekend kan dienen als bergruimte.

Buiten
De woning beschikt over een ruime tuin met vrije achterom, ideaal voor rust en privacy. Aan de zijkant vindt u een eigen oprit met ruimte om gemakkelijk te parkeren.

Pluspunten van deze woning:
• Vrijstaande woning met praktische indeling
• Ruime woonkamer met veel lichtinval
• Twee badkamers
• Handige bijkeuken en kelder
• Garage met elektrische roldeur
• Drie slaapkamers, voorzien van rolluiken
• Ruime zolderverdieping
• Tuin met vrije achterom en eigen oprit

Kortom: Veldstraat 52 combineert comfortabel wonen met veel potentie en mogelijkheden, op een aantrekkelijke locatie in Helden.

Plattegronden

De ligging van de woning

Delen en printen

Makelaars team Burgstate

Wij helpen je graag verder!

Neem vrijblijvend contact op

Wil je meer informatie of het pand bezoeken? Neem gerust contact met ons op voor meer details. Zodra we jouw aanvraag hebben ontvangen, nemen we verder contact met je op.

Heb je niet gevonden wat je zocht?

Schrijf je dan vrijblijvend in en blijf op de hoogte van ons recente aanbod.

bottom of page