Originele architectuur in een nieuw jasje!
Wonen in een stukje historie (1600), met het comfort van nu? Deze vrijstaande boerderij in het geliefde en groene “ ’t Ven” in Venlo biedt precies dat gevoel. Een woning met de naam ‘Huis Soomers’ dat in 1983 volledig is herbouwd met gebruik van authentieke materialen en volgens de originele bouwtekeningen: een combinatie van karakter, kwaliteit en duurzaamheid.
Kenmerken:
• Gemeentelijk monument, volledig herbouwd in 1983
• Het dak van de woning is in 2018 geheel vervangen en geïsoleerd
• Gebouwd met oog voor detail en respect voor originele architectuur
• Energielabel A – uitstekend geïsoleerd en energiezuinig
• Volledig ingericht en geïsoleerd gastenverblijf (2017) met eigen voorzieningen
• 4 ruime (slaap-)kamers
• Ecologische tuin met veel privacy en rust
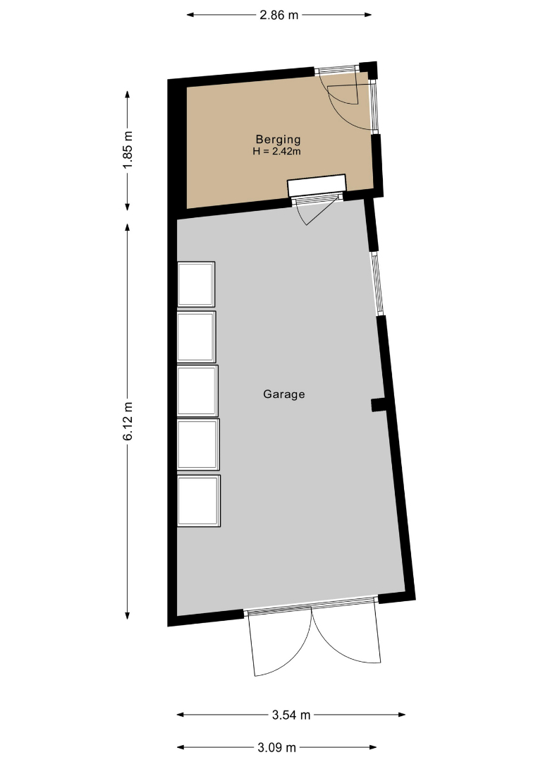
• Riante hobbyruimte/garage
• Eigen oprit met carport
Deze unieke woning ademt authenticiteit. Een niet-alledaags object in Venlo dat je gezien móet hebben. Maak snel een afspraak voor een bezichtiging en ervaar de sfeer zelf.
Indeling
Kelder:
- Via een stenen trap bereik je de praktische provisiekelder met tongewelf. Een ruimte (ca. 5m2) met een continue koele temperatuur en historische uitstraling.
Begane grond:
- Je betreedt de woning via een karakteristieke entree in een royale ontvangsthal (ca. 25m2), compleet met een authentieke stoof, gewelfd plafond en een bourgondische keramische tegelvloer. Hier bevindt zich ook een toilet met voorportaal, geheel in stijl van het huis uitgevoerd.
- De charmante opkamer (ca. 13m2), gelegen boven de kelder, is momenteel ingericht als kantoor en biedt een rustige werkplek.
- De gesloten keuken straalt landelijke klasse uit en is voorzien van massief houten keukenkastjes met een stenen werkblad en diverse moderne apparatuur zoals een inductiekookplaat, afzuigkap, vaatwasser, oven en een hoogwaardige Grohe-kraan met gekoeld, gefilterd én bruisend water.
- Aansluitend bevindt zich de bijkeuken met praktische bergruimte, wasbak en loopdeur naar tuin.
- De ruime woonkamer (ca. 70m2) heeft een open en warme sfeer, mede dankzij de zichtbare eikenhouten draagconstructie, de massief eikenhouten vloer en de open trap naar de verdieping. De open haard vormt het hart van de ruimte.
- Op de begane grond bevindt zich bovendien een slaapkamer (ca. 12m2) met charmante schuurramen, die zowel sfeer als daglicht brengen in deze comfortabele ruimte.
Verdieping:
- Via de trap bereik je de verdieping, waar de overloop toegang biedt tot alle vertrekken.
- De badkamer (ca. 6m2) is modern en compleet ingericht met een ligbad, aparte douche, hangtoilet en een meubel met waskom.
- De master bedroom (ca. 20m2) is royaal van opzet en beschikt over diverse inbouwkasten. Vanuit hier is ook de vliering bereikbaar.
- Een tweede, multifunctionele kamer (ca. 38m2) is eveneens voorzien van inbouwkasten en biedt volop mogelijkheden: van extra slaapkamer(s), atelier of werkruimte tot een speelkamer. Dankzij de teruggebrachte originele kapconstructie met fraaie nokhoogte, balken in het zicht en volledige isolatie, ademt deze verdieping karakter, rust en kwaliteit.
Gastenverblijf:
- Op het perceel bevindt zich een houten gastenverblijf, volledig geïsoleerd en dankzij de vele ramen met een prettige natuurlijke lichtinval.
- De ruimte is praktisch ingedeeld en voorzien van doorlopende vloerverwarming. Er is een eenvoudige maar functionele kitchenette in de woon-/eetkamer (ca. 19m2), een gezellige slaapkamer (ca. 5,5m2) en een nette doucheruimte met hangcloset en wastafel.
- Ideaal als logeerplek, mantelzorgwoning, praktijkruimte of atelier – een volwaardig en flexibel bijgebouw dat naadloos aansluit bij de kwaliteit en sfeer van de hoofdwoning.
Tuin:
- De woning is omgeven door een prachtig aangelegde, biologische tuin met een rijke mix van natuur, functionaliteit en historie. De eigen oprit, verhard met originele Maaskeien, biedt parkeergelegenheid voor twee auto's en leidt naar een carport met sedumdak: een groene en duurzame oplossing.
- Aansluitend bevindt zich een ruime hobbyruimte/garage (ca 20m2) met separate berging (ca. 5m2), ideaal voor klussen, opslag of het stallen van fietsen en tuinmateriaal.
- De tuin zelf is een oase van rust en biodiversiteit, met onder meer een volwassen boomgaard met diverse fruit- en notenbomen (een bron van seizoensgebonden lekkernijen). Verspreid over het perceel liggen meerdere terrassen (enkele overdekt), perfect om op elk moment van de dag van zon of schaduw te genieten.
- Een bijzondere blikvanger is de originele waterput, een tastbare herinnering aan het verleden en een uniek historisch element in deze groene leefomgeving.
Kortom: een buitenruimte die in elk seizoen inspireert en uitnodigt tot genieten.
Enkele wetenswaardigheden over de woning:
- Gebouwd rond 1600 en volledig herbouwd in 1983;
- Gastenverblijf gebouwd in 2017;
- Energielabel A (door o.a. WTW-installatie, volledige isolatie, luchtverwarming -2011-, deels triple beglazing);
- De ramen, deuren en kozijnen zijn allen vervaardigd van hout en hebben deels triple beglazing. Enkele kozijnen hebben nog enkele beglazing met voorzetglas;
- Het gastenverblijf heeft een eigen cv-ketel (2017);
- Het schilderwerk van de hal en de deuren is in originele kleuren uitgevoerd;
- Het regenwater wordt op eigen terrein geïnfiltreerd.
Deze woning wordt ook collegiaal aangeboden door Boek & Offermans
Plattegronden
De ligging van de woning
Neem vrijblijvend contact op
Wil je meer informatie of het pand bezoeken? Neem gerust contact met ons op voor meer details. Zodra we jouw aanvraag hebben ontvangen, nemen we verder contact met je op.













