Bij Sablones in Venlo, werkt u te midden van een inspirerende mix van commercie en creativiteit. Flexibiliteit staat bij Sablones altijd voorop. Ook de locatie
De naam Sablones verwijst naar de Romeinse nederzetting die ergens in deze omgeving lag en die onlosmakelijk met de oorsprong van Venlo is verbonden. Het nieuwe Sablones is een uitstekende uitvalsbasis voor allerlei ondernemers, net zoals de vroegere nederzetting dat was voor handelaren in de Romeinse tijd.
Kenmerken
Algemeen
Bij Sablones kunt u een presentabele, kant en klare werkplek huren (al vanaf 20 m²) van waaruit u uw onderneming kunt vormgeven en besturen. Door onze service-gerichte instelling en flexibele voorwaarden bent u bij ons geen huurder, maar partner.
Bestemming
Hoofdbestemming: Kantoorruimte
Oppervlakten
Perceeloppervlakte: 2.165 m2
Totale oppervlakte: 4.571 m2
Te huur: kantoorkamers vanaf 23 m²
Object
Sablones in Venlo is een laagdrempelig bedrijfsverzamelgebouw met mogelijkheden tot het huren van een kantoorruimte, alsmede een flexplek / flexkantoor en/of een vergaderruimte van 2 tot 25 personen.
Bereikbaarheid
Auto
Het object ligt op korte afstand van de toe- en afritten naar de A67, A73 en A74, van waaruit u een uitstekende verbinding heeft naar Antwerpen, het Ruhrgebied en Eindhoven (A67) en Nijmegen en Maastricht (A73). Daarnaast is het stadscentrum van Venlo binnen enkele autominuten te bereiken.
Openbaar vervoer
Het object op is ca. 250 meter loopafstand gelegen van het NS-station Venlo, waar zich tevens ook het bus knooppunt bevindt.
Parkeren
Op eigen terrein is voldoende parkeergelegenheid voorhanden.
Huuruitgangspunten
Huurprijs per maand
Huurprijzen vanaf € 400,00 per maand exclusief btw op basis van een kantoorruimte met een oppervlakte van 23 m².
Servicekosten
De servicekosten (o.a. de levering van gas, water en elektra, internet, schoonmaak algemene ruimte, alarm- en beveiligingskosten, receptiefunctie en algemene onderhoudskosten) zijn bij de huurprijs inbegrepen, waardoor u nooit een afrekening ontvangt op het einde van het jaar.
Huurtermijn
In overleg bespreekbaar.
Beschikbaarheid
In overleg, doch op korte termijn
Opleveringsniveau
De verschillende ruimtes zijn voorzien van vloerbedekking, de wanden en plafonds zijn netjes afgewerkt, er is internet aanwezig en iedere ruimte is individueel te verwarmen en te koelen. Optioneel kunnen de ruimtes ook gemeubileerd worden gehuurd.
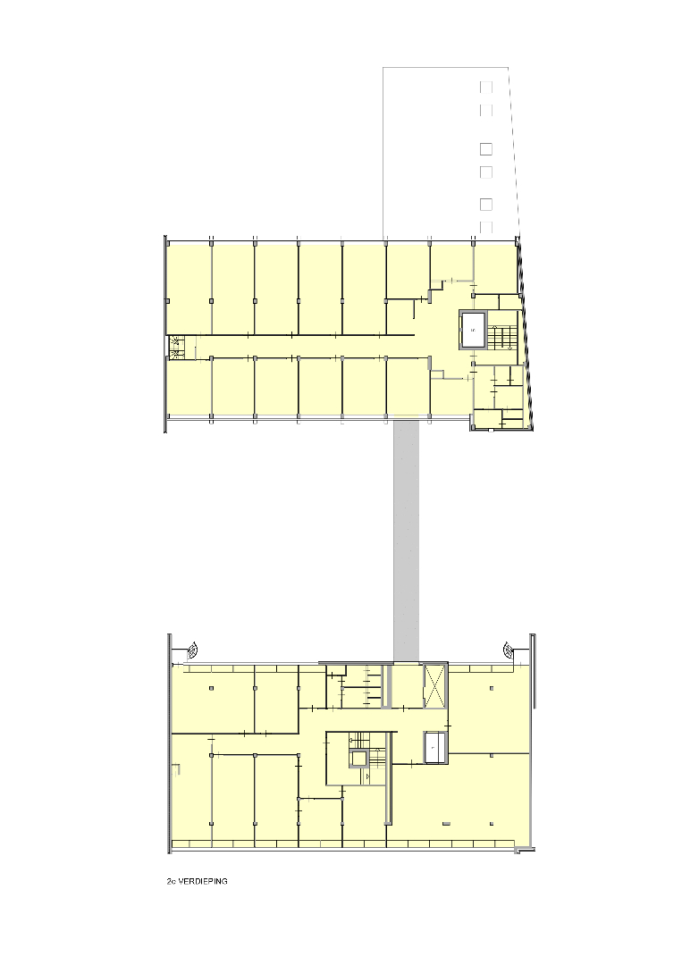
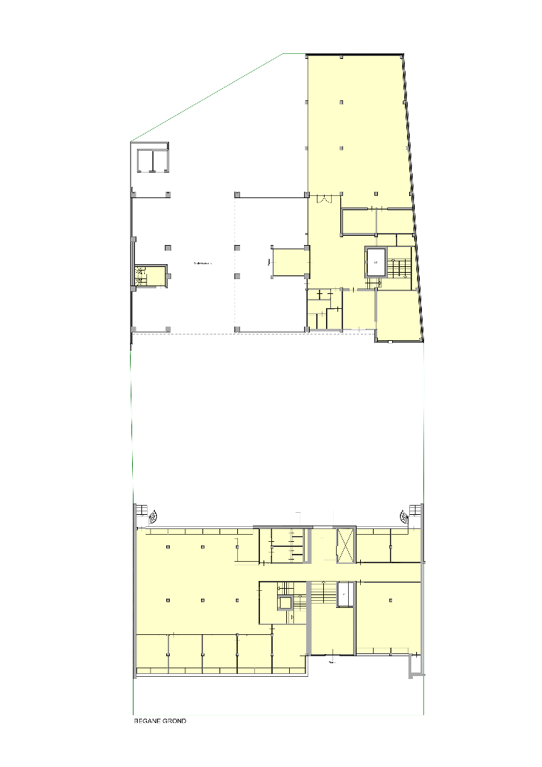
Plattegronden
De ligging van de woning
Neem vrijblijvend contact op
Wil je meer informatie of het pand bezoeken? Neem gerust contact met ons op voor meer details. Zodra we jouw aanvraag hebben ontvangen, nemen we verder contact met je op.













