Parade 56-58, Venlo
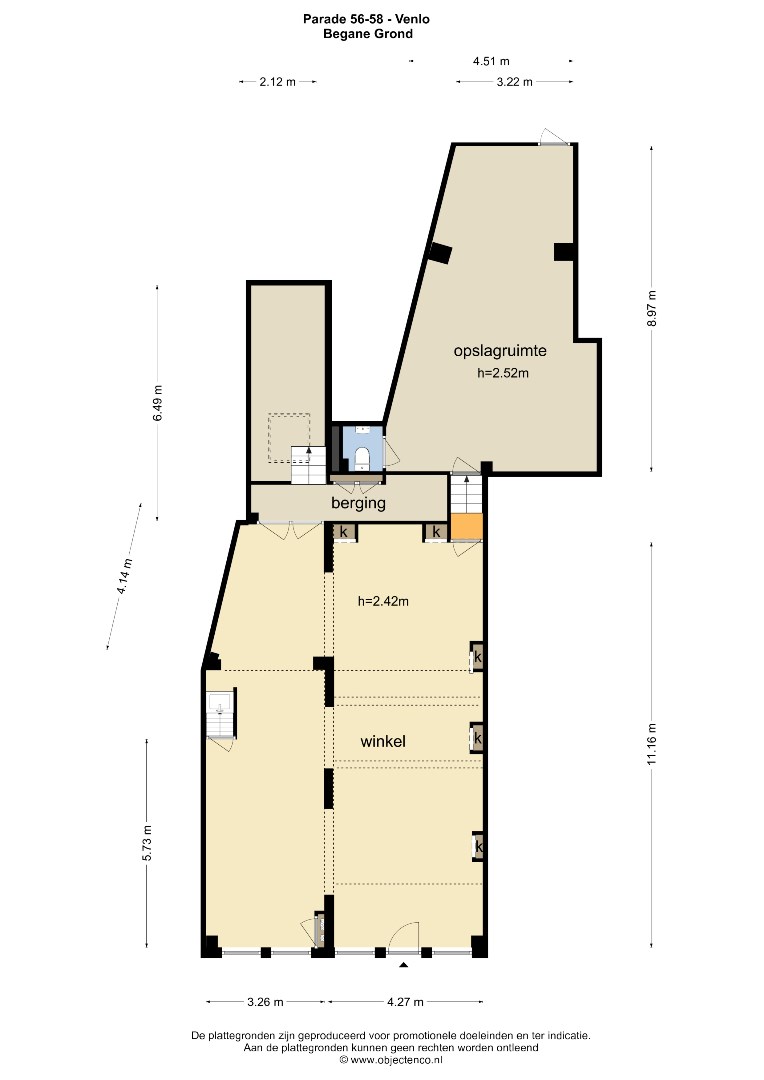
Midden in het centrum van Venlo (A-locatie) bieden wij u deze winkelruimte (ca. 95m2) met magazijn (ca. 32m2) aan. De winkelruimte verkeert in een nette staat van onderhoud, een toonbank en verlichting is aanwezig.
Deze voormalige kledingwinkel heeft veel lichtinval door de grote raampartijen, heeft een grijze tegelvloer en gestuukte wanden. Toonbank met veel bergruimte en kleine pantry.
Wanneer men doorloopt vindt u linksachter in de winkel de kleedruimte (ca. 13m2). Deze bestaat nu uit 3 pashokjes. Hier is ook een bergruimte van ca. 3m2. Dit gedeelte van de zaak is voorzien van een vloerbedekking.
De winkel heeft grotendeels een verhoogd plafond met mooie authentieke elementen.
Magazijn:
Rechts, achter in de zaak, gaat u met een trapje naar het magazijn (ca. 32m2) voorzien van een tegelvloer. Hier is ook het toilet gesitueerd.
Algemeen:
- Aan de binnenzijde is een elektrisch ijzeren (tralie)rolluik;
- Verwarming middels c.v.;
- Korte loopafstand naar NS station;
- Tegenover het pand ligt een Q-park parkeergarage.
Aanvaarding:
Beschikbaar per direct.
Huurtermijn:
In overleg.
Waarborgsom:
3 maanden.
Indexering:
Jaarlijks overeenkomstig het CBS.
Bestemming:
Bestemmingsplan ‘’Centrum Venlo’’ met als enkelbestemming ‘’Centrum-2’’.
Voorbehoud:
Goedkeuring eigenaar.
Voor meer informatie over de Venlose binnenstad: www.venloverwelkomt.nl
Plattegronden
De ligging van de woning
Neem vrijblijvend contact op
Wil je meer informatie of het pand bezoeken? Neem gerust contact met ons op voor meer details. Zodra we jouw aanvraag hebben ontvangen, nemen we verder contact met je op.













