Instapklare levensloopbestendige hoekwoning in een rustig hofje
Op zoek naar comfort, stijl én gemak op één plek? Deze fraai gemoderniseerde hoekwoning biedt alles wat u zoekt! Dankzij de slaapkamer en moderne badkamer op de begane grond is deze woning ideaal voor wie gelijkvloers wil wonen.
Highlights van de woning:
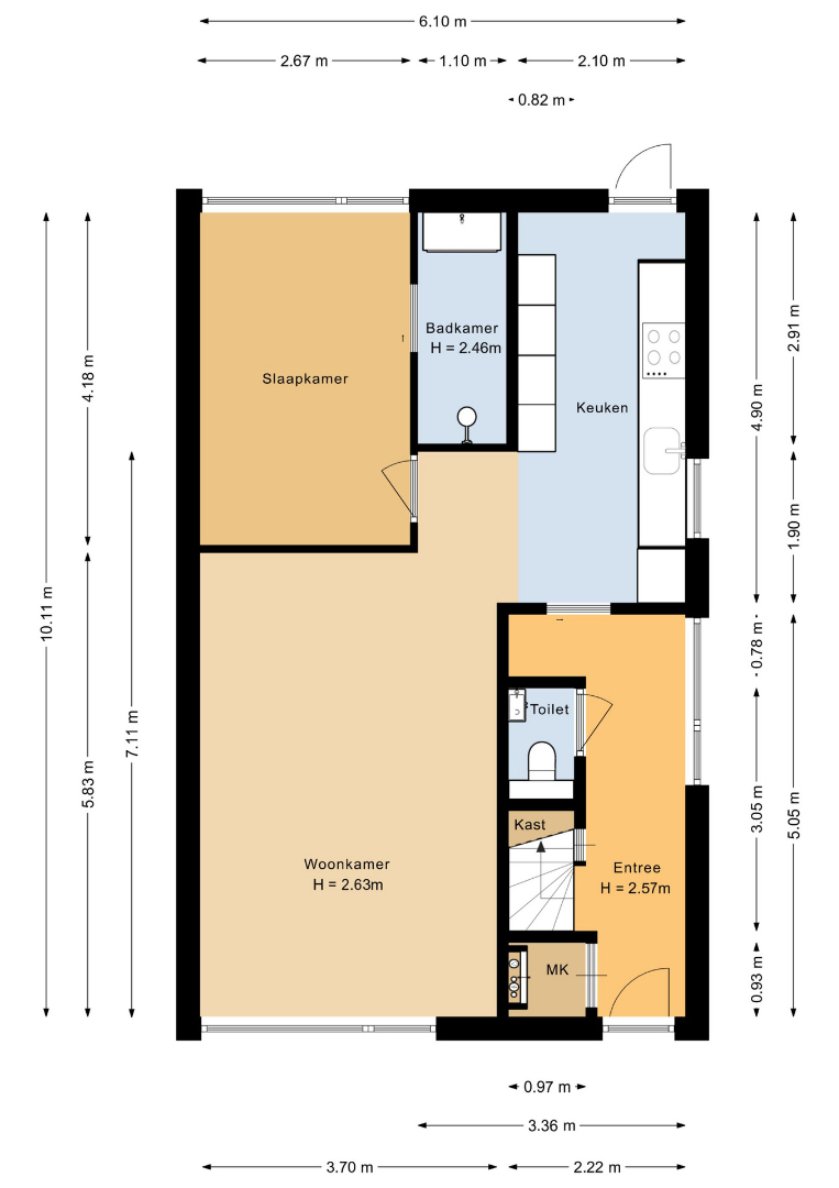
- Lichte woonkamer (ca. 23,5m2) met directe doorgang naar de keuken
- Slaapkamer (ca. 11m2) & moderne badkamer (ca. 3m2) op de begane grond – inclusief regendouche, wastafelmeubel en designradiator
- Landelijke keuken (ca. 10m2) compleet met inbouwapparatuur: 4-pits inductiekookplaat, oven, vaatwasser, koelkast, diepvries en afzuigkap
- Ruime zolder (ca. 33m2) met witgoedaansluiting en volop mogelijkheden voor werk, hobby of logeerkamer
- Verzorgde achtertuin met overkapping, berging en vrije achterom
- Vrij parkeren in de directe omgeving
- Supermarkt en winkels op loopafstand
- Kunststof kozijnen met HR-beglazing, ‘Dauerluftung’ en elektrisch te bedienen rolluiken
- Cv-ketel is nieuw (Atag - 2025) en in eigendom
De woning is vier jaar geleden nagenoeg geheel gemoderniseerd, waardoor u direct kunt genieten van een eigentijdse afwerking en comfort. Dankzij de rustige ligging én de nabijheid van alle voorzieningen combineert deze woning het beste van twee werelden.
Wacht niet te lang; plan vandaag nog uw bezichtiging en ervaar het zelf!
Plattegronden
De ligging van de woning
Neem vrijblijvend contact op
Wil je meer informatie of het pand bezoeken? Neem gerust contact met ons op voor meer details. Zodra we jouw aanvraag hebben ontvangen, nemen we verder contact met je op.













